For Sale

Under Offer
Office
19 Academy Street, Inverness, IV1 1JN
Tenure: For Sale
Size: 1,111 sq ft (103 sq m)
Price: Offers Over £145,000
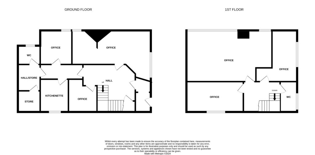
Floor Plan

Key Features

  • Prominent location within Inverness City Centre.
  • Suitable for a range of different occupiers and uses.
  • Strong redevelopment potential (subject to obtaining the relevant consents)
  • Offers over £145,000 invited.
  • Eligible for up to 100% rates relief under the small business rates relief scheme.
  • GIA - 137.5 sq m (1,480 sq ft)

The subjects comprise a semi-detached two storey office block. The accommodation is generally laid out in a cellular basis with a range of different seized offices on each floor. There are kitchen provisions on the ground floor and toilet provisions on each floor.

19 Academy Street is situated in the centre of Inverness, in a quiet, secluded area that provides both privacy and convenience. The subjects are accessible via a private lane which benefits from an electrically deployable roller gate providing an additional layer of security.

In spite of its screened location, the property is in close proximity to and has easy access to Academy Street, which is one of the primary thoroughfares in the city. The immediate vicinity of the properties is home to a variety of purposes, such as offices, retail, and leisure, which are operated by both local and national entities.

The city of Inverness is the administrative capital of the Highlands and has a population of approximately 65,000. The city has a catchment area of approximately 350,000 and is a popular tourist destination. Rail and bus links are in close proximity to the subjects, providing regular services to and from the city. The A9 connects the city to Perth, Glasgow, and Edinburgh to the south, and Wick and Thurso to the north. The A96 connects to Aberdeen, while the A82 leads to Fort William. Inverness Airport is located 10 miles east of the city and offers regular flights to the Scottish Islands, the mainland, and a variety of foreign destinations.

UTILITIES

The property has mains connections of water, electricity and drainage.

Heating is provided by a series of electric heaters with an air conditioning unit also being fitted on the ground floor.

EPC

The Energy Performance Certificate (EPC) rating is ‘D’.

SALE

Offers in excess of £145,000 are sought for our client’s interest in the property.

ENTRY

On completion of legal formalities.

RATEABLE VALUE

According to the Scottish Assessor’s website ( the subjects have a rateable value of £11,750 effective 1st April 2023.

Eligible occupiers may benefit from up to 100% rates relief under the Small Business Bonus scheme. Further details regarding eligibility can be obtained from the local authority.

LEGAL COSTS

Each party will be responsible for their own legal costs incurred in the preparation, negotiation and settlement of documentation pertaining to the lease or sale including LBTT or VAT applicable.

AML REQUIRMENTS

To satisfy our money laundering requirements, once an offer is accepted, the prospective purchaser(s)/occupier(s) will need to provide, as a minimum, proof of identity and residence and proof of funds for the purchase, before the transaction can proceed.

Andy Gray

Director | RICS Registered Valuer
Calum Dunbar

RICS Registered Valuer

Enquire about this property

"*" indicates required fields

Office Agency Team of the Year – Finalist

Retail and Leisure Agency Team of the Year – Finalist

Retail and Leisure Team of the Year – Finalist

Industrial Agency Team of the Year - Finalist

Business Resilience Award – Finalist

What our customers say

Excellent service received from James Burns. Process of having a home report carried out was seamless from start to finish. Highly recommend.

I would like to say that Keith and One Service have bent over backwards to help us on our way to preparing the sale of our home. They have been extremely professional, courteous and helpful throughout. I cannot speak highly enough about them.

I have dealt with Allied Surveyors in Inverness for many years most recently with regard to a Commercial Rent Review. They are highly professional , very efficient and go to great lengths to ensure that the client is well looked after and represented properly. I have no hesitation in recommending them.

I chose Allied to carry out home report on my flat. Scott Livingstone came out quickly and carried out a thorough inspection of the property. The report was accurate, clear and concise on the condition and provided a valuation that I and ultimately the market was happy with. I would thoroughly recommend to others requiring valuation services

Bernadetta provided an excellent service, warm, friendly and very approachable. A professional service from start to finish. I would highly recommend Bernadetta at Allied Surveyors.

I have huge thanks for Simon and all at Allied Surveyors who are just the most wonderful company to deal with. Buying/selling a home can be a complex process and to give someone your time is such a simple thing yet often lost in the current world, Simon at Allied has given us just that as well as mountains of advice and a sharing of his knowledge. Thanks Again

Professional and really nice person to deal with. Scott from Allied Surveyors (Stirling/falkirk area) recently did my home report. He was easy to talk and he explained the issues he noticed at the time of viewing the property as well as in more detail in the report itself. He is a very fair individual and also in our discussion gave me the opportunity to correct a few things. Not full of himself or power tripping. Just a genuninely nice person doing his job. Thank you.

Grant Robertson recently completed a development valuation for a site I am building out. His knowledge and attention to detail was outstanding and has made the process of purchase and funding so much easier. He also kept the lawyers, who were often dragging their feet, focused on delivery.

Great service from Bernadetta. She was always available for questions and very responsive. Thanks for finding a Tenant and helping in closing the lease.

We’re here to help.

If you have a question about any of our other services please fill in the enquiry form or call one of our offices.