For Sale

Under Offer
Investment, Restaurant
61 Leith Walk, Leith, Edinburgh, EH6 8LS
Tenure: For Sale
Size: 1,492 sq ft (139 sq m)
Price: Offers Over £285,000
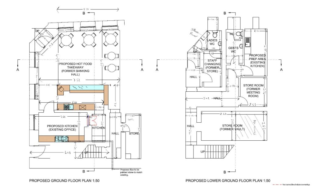
Floor Plan

Key Features

  • Well-presented restaurant investment on Leith Walk
  • Let until 30th November 2029 at a passing rent of £20,400 per annum
  • Active asset management opportunities
  • Close proximity to Constitution Street tram stop
  • Offers Over £285,000 reflecting a reversionary yield of 8.19%

The property comprises a restaurant arranged over the ground and basement floors of a three-storey traditional stone building, with a frontage onto Leith Walk and a return frontage onto Crown Street.

The ground floor includes an open-plan customer seating area for 26 covers, along with an open kitchen and service pass. Behind the kitchen are a food preparation area and dry store. At the rear of the property, a corridor leads to a customer WC and the basement.

The kitchen is fitted with a nine-burner gas stove, overhead extraction, commercial grill, tandoori oven, deep-fat fryer, two fridges, handwashing station, and stainless-steel workbench. To the rear, the preparation area includes a large upright fridge, two stainless steel sinks for dishwashing and various other large items.

The basement is accessed via a staircase at the rear and provides ancillary accommodation, including a staff WC, changing facilities, a break room, and storage.

Externally, there is a designated seating area to the front of the property accommodating a further six covers.

Leith Walk is a principal commercial thoroughfare in Edinburgh city centre situated approximately 1.5 miles north of Princes Street.

The subjects are situated towards the bottom of Leith Walk close to the junctions with Great Junction Street, Duke Street, and Constitution Street. The property occupies a prominent corner position with a main frontage onto Leith Walk and a return frontage onto Crown Street.

The nearest tram stop is Constitution Street whilst metered parking is available on Leith Walk and surrounding streets.

Neighbouring occupiers include Papa John’s, Edinburgh Bike Fitting, Artisan Roast Coffee, Mother Superior public house, and Café Praline.

Accommodation

According to our recent measurement survey, the premises extends to a gross internal area of:

138.66 sq. m (1,492 sq. ft.)

Tenancy Information

The subjects are currently let to Afan Ahmad t/a Desi Pakwan at a passing rent of £20,400 per annum on a 10-year lease effective from 1st December 2019 to 30th November 2029.

A formal rent review was due on 1st December 2024 but was not actioned.

Price

Our client is seeking offers over £285,000 for their heritable title.

A sale at this level would reflect a reversionary yield of 8.19% allowing for standard purchaser costs of 1.8%.

Terms

Heritable (Scottish equivalent to English freehold).

Rateable Value

According to the Scottish Assessor’s website (www.saa.gov.uk) the subjects are listed as a Hot Food Takeaway with a Rateable Value of £17,000 effective 1st April 2023.  The uniform business rate for the current year is £0.498 pence in the pound.

Utilities

The property is served by mains gas, electricity and water.

Energy Performance Certificate

The Energy Performance Certificate rating is C.

A copy of the recommendation report is available on request.

Legal Costs

Each party shall bear their own legal costs with the eventual purchaser liable for any Registration Dues or LBTT thereon.

Anti-Money Laundering

The Money Laundering, Terrorist Financing and Transfer of Funds (Information on the Payer) Regulations 2017 came into force on 26th June 2017.  This now requires us to conduct due dilligence not only on our client but also on any purchasers or occupiers.  Once an offer has been accepted, the prospective purchaser(s)/occupier(s) will need to provide, as a minimum, proof of identity and residence and proof of funds for the purchase, before any transaction can proceed.

Entry

Upon completion of a formal missive under Scots Law.

Iain W. Mercer

Head of Commercial Agency - Scotland
Bernadetta Majewska

Associate Director | Commercial Valuation and Agency Advisory

Enquire about this property

"*" indicates required fields

Office Agency Team of the Year – Finalist

Retail and Leisure Agency Team of the Year – Finalist

Retail and Leisure Team of the Year – Finalist

Industrial Agency Team of the Year - Finalist

Business Resilience Award – Finalist

What our customers say

Excellent service received from James Burns. Process of having a home report carried out was seamless from start to finish. Highly recommend.

I would like to say that Keith and One Service have bent over backwards to help us on our way to preparing the sale of our home. They have been extremely professional, courteous and helpful throughout. I cannot speak highly enough about them.

I have dealt with Allied Surveyors in Inverness for many years most recently with regard to a Commercial Rent Review. They are highly professional , very efficient and go to great lengths to ensure that the client is well looked after and represented properly. I have no hesitation in recommending them.

I chose Allied to carry out home report on my flat. Scott Livingstone came out quickly and carried out a thorough inspection of the property. The report was accurate, clear and concise on the condition and provided a valuation that I and ultimately the market was happy with. I would thoroughly recommend to others requiring valuation services

Bernadetta provided an excellent service, warm, friendly and very approachable. A professional service from start to finish. I would highly recommend Bernadetta at Allied Surveyors.

I have huge thanks for Simon and all at Allied Surveyors who are just the most wonderful company to deal with. Buying/selling a home can be a complex process and to give someone your time is such a simple thing yet often lost in the current world, Simon at Allied has given us just that as well as mountains of advice and a sharing of his knowledge. Thanks Again

Professional and really nice person to deal with. Scott from Allied Surveyors (Stirling/falkirk area) recently did my home report. He was easy to talk and he explained the issues he noticed at the time of viewing the property as well as in more detail in the report itself. He is a very fair individual and also in our discussion gave me the opportunity to correct a few things. Not full of himself or power tripping. Just a genuninely nice person doing his job. Thank you.

Grant Robertson recently completed a development valuation for a site I am building out. His knowledge and attention to detail was outstanding and has made the process of purchase and funding so much easier. He also kept the lawyers, who were often dragging their feet, focused on delivery.

Great service from Bernadetta. She was always available for questions and very responsive. Thanks for finding a Tenant and helping in closing the lease.

We’re here to help.

If you have a question about any of our other services please fill in the enquiry form or call one of our offices.