For Sale

Under Offer
Industrial
16 Whin Place, Nerston Industrial Estate, East Kilbride, G74 3XS
Tenure: For Sale
Size: 2,033 sq ft (189 sq m)
Price: Inviting Offers

Key Features

  • Rarely available self-contained light industrial premises
  • Established industrial location with excellent access to the A725/M74
  • Subject to a ground lease but opportunity to acquire heritable interest
  • GIA: 188.87 sq m (2,033 sq ft)

The property comprises a single storey mid-terraced industrial building forming part of a complex of industrial units of similar sizes and accommodation.

The terrace has a small shared yard area to front which also provides access to a neighbouring terrace. This provides a level of non designated car parking for the development.

The property is located in East Kilbride, one of the largest towns in Lanarkshire situated approximately 12 miles southeast of Glasgow city centre. In the 1940’s East Kilbride was one of Scotland’s villages chosen to become a new town, which were areas given a special development status. East Kilbride is one of the most successful new towns and today provides extensive housing, shopping and leisure facilities as well as being a large industrial base for both manufacturing and distribution companies. Road links in this area are good connecting the town to Scotland’s motorway network. The A725 road connects the town with the M74 motorway leading south, which also provides access to the M73 leading north and the M8, which leads east to west through the central belt. The A726 has also been extended with the southern orbital route linking East Kilbride with the M77 at Junction 5, which is the main route south to Ayrshire from Glasgow.

The property is situated on the eastern edge of Nerston Industrial Estate, located on Whin Place which lies adjacent to part of the A725 that connects East Kilbride with Hamilton and the M74

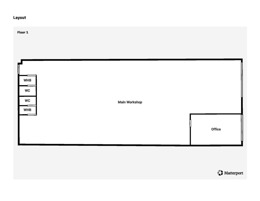
Accommodation

The accommodation comprises open plan workshop area with small offices formed to the front and two toilets to the rear.

Floor Area

We calculate the gross internal floor area of the property at 188.87 sq m (2,033 sq ft).

Tenure

The subjects are held under a Ground Lease agreement, the salient terms of which are as follows:

Landlord:                     City & Provincial (Equity Partners) Limited

Term:                            99-year lease from 15th July 1983

Rent Review:               Every 10 years until 2073

Rent:                              £2,230 plus vat set at review in 2023

Further detail can be provided on request.

Price

Our client is inviting offers for their leasehold interest.

We understand that there is an opportunity to also acquire the ground lease which would provide outright ownership. Further details on request.

Rateable Value

According to the Scottish Assessor’s website (www.saa.gov.uk) the subjects have a Rateable Value of £13,700 effective 1st April 2026. The uniform business rate for the current year is £0.481 pence in the pound.

Occupiers may be eligible for 100% rates relief through the Small Business Bonus Scheme if the combined rateable value of all their business premises in Scotland is £35,000 or less.

Energy Performance Certificate

The Energy Performance Certificate rating is G.

Offers

In the normal Scottish form addressed to this office.

Acquisition Costs

Each party shall be responsible for their own legal costs incurred in connection with the eventual purchaser liable for any Land and Buildings Transaction Tax (LBTT) and VAT thereon.

VAT

We have been advised that the property is not VAT elected and therefore understand that VAT is not payable

Date of Entry

To be mutually agreed.

Anti-Money Laundering

The Money Laundering, Terrorist Financing and Transfer of Funds (Information on the Payer) Regulations 2017 came into force on 26th June 2017. This now requires us to conduct due diligence not only on our client but also on any purchasers or occupiers. Once an offer has been accepted, the prospective purchaser(s)/ occupier(s) will need to provide, as a minimum, proof of identity and residence and proof of funds for the purchase, before any transaction can proceed.

Enquire about this property

"*" indicates required fields

Office Agency Team of the Year – Finalist

Retail and Leisure Agency Team of the Year – Finalist

Retail and Leisure Team of the Year – Finalist

Industrial Agency Team of the Year - Finalist

Business Resilience Award – Finalist

What our customers say

Excellent service received from James Burns. Process of having a home report carried out was seamless from start to finish. Highly recommend.

I would like to say that Keith and One Service have bent over backwards to help us on our way to preparing the sale of our home. They have been extremely professional, courteous and helpful throughout. I cannot speak highly enough about them.

I have dealt with Allied Surveyors in Inverness for many years most recently with regard to a Commercial Rent Review. They are highly professional , very efficient and go to great lengths to ensure that the client is well looked after and represented properly. I have no hesitation in recommending them.

I chose Allied to carry out home report on my flat. Scott Livingstone came out quickly and carried out a thorough inspection of the property. The report was accurate, clear and concise on the condition and provided a valuation that I and ultimately the market was happy with. I would thoroughly recommend to others requiring valuation services

Bernadetta provided an excellent service, warm, friendly and very approachable. A professional service from start to finish. I would highly recommend Bernadetta at Allied Surveyors.

I have huge thanks for Simon and all at Allied Surveyors who are just the most wonderful company to deal with. Buying/selling a home can be a complex process and to give someone your time is such a simple thing yet often lost in the current world, Simon at Allied has given us just that as well as mountains of advice and a sharing of his knowledge. Thanks Again

Professional and really nice person to deal with. Scott from Allied Surveyors (Stirling/falkirk area) recently did my home report. He was easy to talk and he explained the issues he noticed at the time of viewing the property as well as in more detail in the report itself. He is a very fair individual and also in our discussion gave me the opportunity to correct a few things. Not full of himself or power tripping. Just a genuninely nice person doing his job. Thank you.

Grant Robertson recently completed a development valuation for a site I am building out. His knowledge and attention to detail was outstanding and has made the process of purchase and funding so much easier. He also kept the lawyers, who were often dragging their feet, focused on delivery.

Great service from Bernadetta. She was always available for questions and very responsive. Thanks for finding a Tenant and helping in closing the lease.

We’re here to help.

If you have a question about any of our other services please fill in the enquiry form or call one of our offices.